NRW nieuwbouw woning Mechelen 2011 - 2012
| Programma | nieuwbouw laag-energie woning |
|---|---|
| Studiebureaus | Util, stabiliteit |
| Bouwheer | Vermoesen - Van Nuffel |
| Oppervlakte | 206 m² |
| Ontwerp | 2011 |
| Uitvoering | 2012 |
Het gekozen volume is kleiner dan het opgegeven volume, maar wel homogener en compacter. Het haalt de vertrapping uit het gabarit en maakt er één helder volume van dat veel beter aansluit bij de reeds bestaande woningen in de straat.
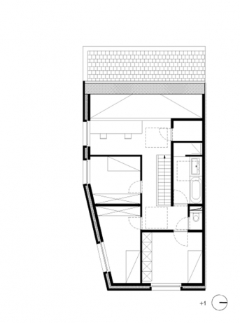
De linkervoorgevel wordt afgeschuind, waardoor de toegang van de woning extra wordt geaccentueerd en waardoor de ochtendzon ook in de woning kan binnen schijnen. Ook het rechtopstaand metselwerkverband in de voorgevel en zijgevel zorgt voor een accentuering van de toegang. De voorste zone is op het gelijkvloers ingericht als toegangszone en als slaapkamer. Aan de achterzijde bevinden zich de keuken en de leefruimte en is de woning gefocust op de achterliggende tuin. Een vide maakt een ruimtelijke connectie met de verdieping, waar zich de overige slaapkamers en het bureau bevinden. In de donkerste zone en centraal in de woning bevinden zich de bergingen en sanitair.
De gevel bestaat uit een oranjerode baksteen. Het hellende dak wordt voorzien van tegelpannen in dezelfde oranjerode kleur, zodoende vormen beide één geheel. Deze kleur verwijst naar de materialisatie van de omliggende woningen waardoor de woning zich integreert in zijn omgeving maar toch iets frisser ogend door de oranje tint in de steen.
Door zijn compactheid, zijn materiaalgebruik en een zeer goed geïsoleerde buitenschil zal deze woning ook duurzaam zijn.