JBS verbouwing burgerwoning Antwerpen 2004 - 2006
| Programma | verbouwing burgerwoning |
|---|---|
| Studiebureaus | Eddy Henskens, stabiliteit |
| Bouwheer | De Nil-Vanderstraeten |
| Oppervlakte | 180 m² |
| Ontwerp | 2004 |
| Uitvoering | 2006 |
| Fotografie | RADAR architecten |
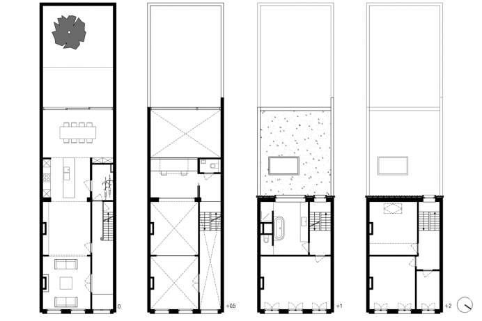
Deze oude burgerwoning in het centrum van Berchem had kwaliteiten en charme maar was afgeleefd. Het hoofdgebouw heeft een goede structuur, een perfecte indeling met ruime kamers en is zeer licht. Deze is dan ook nagenoeg intact gebleven. De achterbouw, die bouwfysisch en structureel in slechte staat was en het perceel in 2 smalle delen verdeelde,
werd gesloopt.
Het karakter van de woning, met nog aanwezige originele elementen, is behouden en de opeenvolging van ruimtes met een eigen karakter wordt versterkt door de toevoeging van een kleine, lage ruimte en een dubbelhoge ruimte over de volledige perceelsbreedte. De overgang tussen de bestaande woning en de nieuwe achterbouw is op een aangename en verrassende manier gecreëerd. Het tunneleffect en de opeenvolging van smalle ruimtes, wordt door deze ingrepen volledig doorbroken.
Door de verbouwing baadt de woning nu in het licht, heeft deze een grote relatie met het stadstuintje en voldoet de woning aan de hedendaagse comforteisen. De zorgvuldige restauratie van de voorgevel en het situeren van een leefruimte aan de straatzijde moet maken dat deze woning ook een positieve uitstraling heeft in de buurt en op die manier ook zijn bijdrage levert aan de stad.